Kiadó Épület, Épület, Šaľa, Szlovákia
Ország.: Szlovákia
Város.: Šaľa
Lokáció.: Šaľa
4236x listában megjelenítve / 223x részletesen megjelenítve / 133x részletesen megjelenítve ebben a hónapban
HOGYAN ÉRTÉKELI A HIRDETÉST?
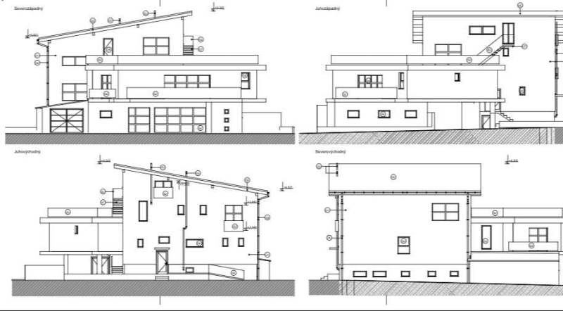
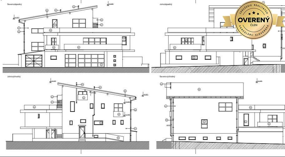
Részletes információk
| A telek területe | 1133 m² |
|---|---|
| Beépített terület | 346 m² |
| Hasznos terület | 600 m² |
| Emeletek száma | 4 |
| Ingatlan állapota | részlegesen átépített |
| Státusz | aktív |
| Víz | kút és vízvezeték hálózat |
| Villany | 230V |
|---|---|
| Csatornahállózat | igen |
| Építőanyag | panel |
| Hőszigetelés | igen |
| Légkondicionáló | igen |
| Energia tanúsítvány | B |
