Kiadó 3 szobás lakás, 3 szobás lakás, Okružná, Stará Ľubovňa, Szlováki
Ország.: Szlovákia
Város.: Stará Ľubovňa
Lokáció.: Stará Ľubovňa
Utca.: Okružná
12849x listában megjelenítve / 424x részletesen megjelenítve / 251x részletesen megjelenítve ebben a hónapban
HOGYAN ÉRTÉKELI A HIRDETÉST?
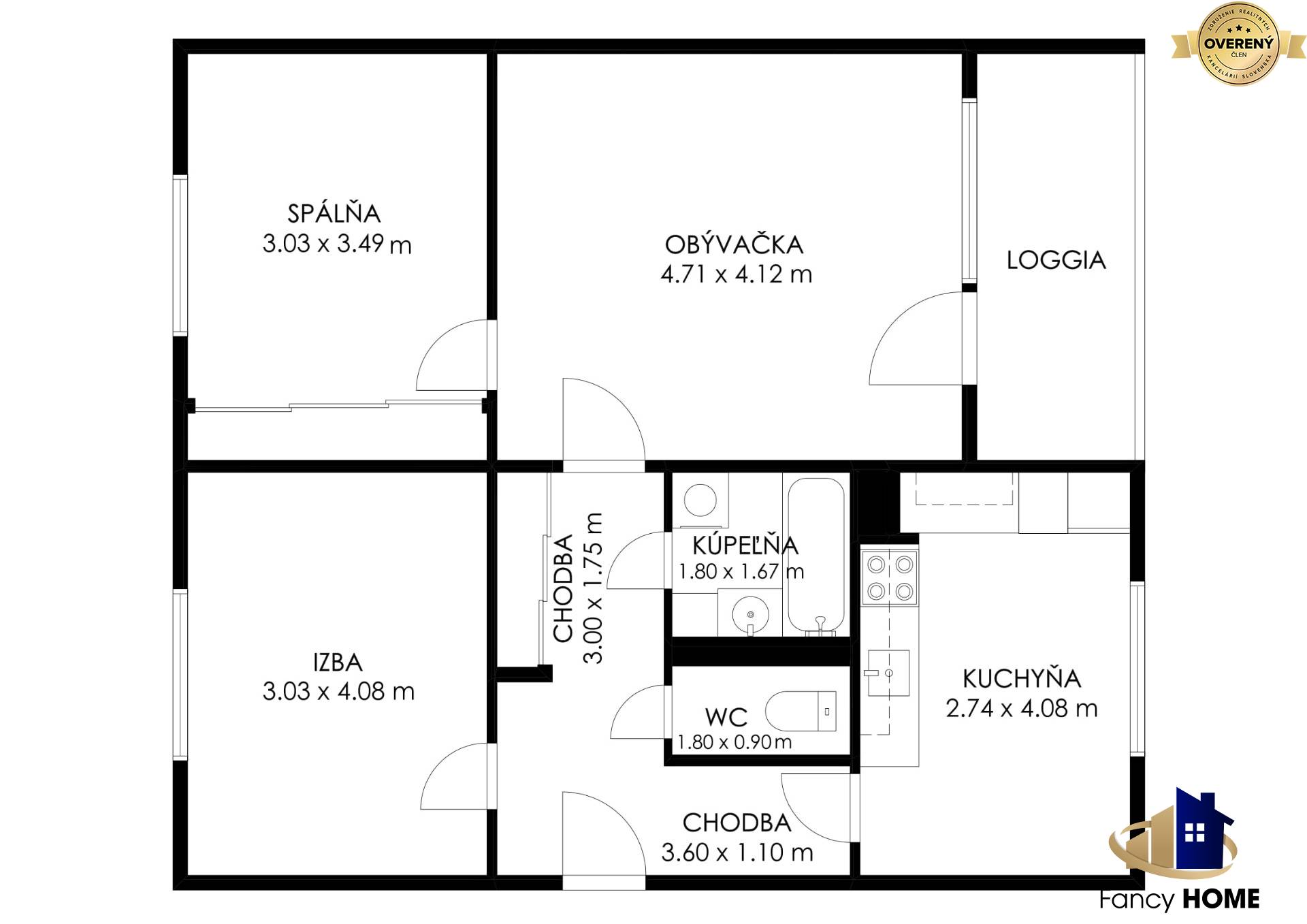
Részletes információk
| Terület | 68 m² |
|---|---|
| Hasznos terület | 68 m² |
| Emelet | 3/felső emelet |
| Emeletek száma | 4 |
| Szobák száma | 3 |
| Tulajdonviszony | saját |
| Ingatlan állapota | részlegesen átépített |
| Státusz | aktív |
| Fürdőszoba | fürdőkád |
| Fűtés | villany |
|---|---|
| Lodzsia | 1 |
| Felvonó | nem |
| Parkoló | nyilvános |
| Építőanyag | más |
| Felszereltség | berendezett |
| Hőszigetelés | igen |
| Energia tanúsítvány | nem |
