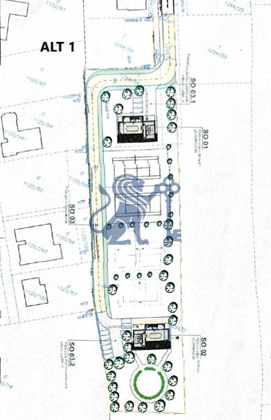
Eladó Építési telek, Építési telek, Pri Pieskovom Hone, Bratislava - R
Ország.: Szlovákia
Város.: Bratislava - Rusovce
Lokáció.: Bratislava - Rusovce
Utca.: Pri Pieskovom Hone
1336x listában megjelenítve / 107x részletesen megjelenítve / 107x részletesen megjelenítve ebben a hónapban
HOGYAN ÉRTÉKELI A HIRDETÉST?
Részletes információk
| A telek területe | 7346 m² |
|---|---|
| Terület | 7346 m² |
| Tulajdonviszony | saját |
| Státusz | aktív |
| Víz | vízvezeték hálózat |
| Villany | 230/400V |
| Gáz | igen |
| Csatornahállózat | igen |
|---|---|
| Mérnöki hálózatok | közel |
| Tájolás | déli |
| Terep | sík |
| Megközelítés | aszfaltút |
| Készen áll az építkezésre | kiadott övezeti határozatot |
