Eladó 3 szobás lakás, 3 szobás lakás, Dúhová, Pezinok, Szlovákia
25531x listában megjelenítve / 193x részletesen megjelenítve / 193x részletesen megjelenítve ebben a hónapban
SZÁZ DARABOS ELADÁS! HASZNÁLJA KI AZ AKCIÓT, ÉS KAPJON EGY PARKOLÓHELYET A LAKÁS ÁRÁBAN! AZ ELSŐ HÁROM LEFOGLALT LAKÁSRA VONATKOZIK.
TOVÁBBÁ a lakás alapárában tartalmazza: SAJÁT HŐSZIVATTYÚT (ami alacsony havi költségeket jelent a leendő tulajdonosnak), LÉGKONDICIONÁLÓ, KÜLSŐ ALUMÍNIUM REDŐNYÖK MINDEN ABLAKON.
A teljes lakáskínálatot megtalálja a www.byvajtevraji.sk weboldalon.
A földszinten található, első ütemben épült, azonos lakásról készült videós bemutatót itt tekintheti meg: https://my.matterport.com/show/?m=UDwxQ1TxfTZ
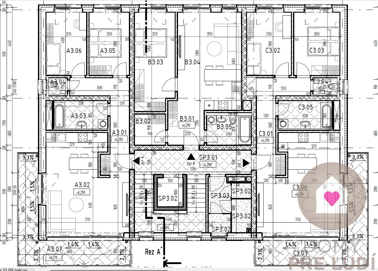
Az RK Domy pre ľudí egy exkluzív, 3 szobás lakást (A2) kínál eladásra egy építés alatt álló társasházban a Malý raj régióban, a Slovenský Grobban, a Dúhová utcában.
A lakás (A2) egy társasház 1. emeletén található (2. emelet). A lakás teljes területe 86,81 m2, amelyből 67,92 m2 maga a lakás, 1,34 m2 a pince és 17,55 m2 egy tágas erkély.
A lakás előszobából (11,29 m2), fürdőszobából (6,08 m2), külön WC-ből (1,57 m2), a konyhához kapcsolódó nappaliból (28,68 m2), ahonnan kijárat az erkélyre, valamint 2 hálószobából (egyenként 10,20 m2) áll. A lakáshoz tartozik egy 1,34 m2-es pince is, amely a lakás mellett található. A lakás keleti és északnyugati fekvésű, kilátással a Kárpátokra.
A lakás "keveset bútorozott" állapotban eladó, tűzgátló biztonsági bejárati ajtóval, fehérre festve, konnektorokkal és kapcsolókkal felszerelve, a padlóburkolatok esztrichje készen áll a járólap lerakására. A lakás fűtése padlófűtéses lesz, saját hőszivattyúval, amely a fürdőszobában található. Az alapár tartalmazza a külső alumínium redőnyöket minden ablakon, a légkondicionáló egységet, valamint az optikai és TV-kábelezést.
A megrendelő egyedi igényei szerint a lakás „standard” állapotúra történő befejezését is felkínáljuk. Az ár alkuképes. A hirdetésben használt fotók is az 1. ütemből származnak.
A LAKÓHÁZ ÁLTALÁNOS LEÍRÁSA:
A lakóház összesen 9 lakást kínál 3 emeleten. A földszinti lakásokhoz saját kert tartozik, a felső emeleti 3 szobás lakásokhoz tágas, 17,55 m2-es erkélyek, a 2 szobás lakásokhoz erkély nélkül. Minden lakáshoz pince tartozik.
FELHASZNÁLT ANYAGOK:
• határoló fal – 30 cm tégla
• lakásközi válaszfalak – 30 cm akusztikus tégla
• belső, nem teherhordó válaszfalak – 13 cm
• tető – betonlap + Fatrafol fólia kavicságyazással
• szigetelés – 18 cm ásványgyapot
• homlokzatfesték – a látványterv szerint
• műanyag ablakok, 6 kamrás, 3 üvegezésű
• 6 személyes lift
• közös helyiségek kerámialapokkal burkolva
• a társasház bejárati kapuja - alumínium
A társasház építése 2024. április negyedévében kezdődött, a befejezés várhatóan 2025. április negyedévében, a lakások jóváhagyása és átadása 2026. januárjában.
A foglalási díj 10 000 euró, a fennmaradó összeg a társasház jóváhagyása és a KZ aláírása után fizetendő.
A társasház előtt 1 db 12 m2-es parkolóhely bérelhető 8 000 eurós felár ellenében.
Az apartmanház a dinamikusan fejlődő Slovenský Grob – Šúr (Malý raj) faluban található, amely híres liba- és kacsaversenyeiről, amelyek évente több ezer látogatót vonzanak a faluba.
A környéken helyi iskola és óvoda is található. Számos játszótér, egy pihenőterülettel ellátott tó, fitneszpark, kávézó, cukrászda, dentálhigiénia, csomagkiadó pont, állatorvosi rendelő és fodrászat található. A buszmegálló 50 méterre található az apartmanháztól. A legközelebbi élelmiszerbolt (Tesco) 1 km-re található az apartmanháztól a Chorvátsky Grob környékén - a Čierna Voda településen, ahol a Monar bevásárlóközpont is található számos intézménnyel, mint például gyógyszertár, drogéria, virágüzlet, fitneszközpont, pizzéria és még sok más. Chor felé. Grob kerékpárral is megközelíthető az új kerékpárhídon keresztül. A közeli autópálya-csatlakozás a Klokan bevásárlóközpontnál még vonzóbbá tette ezt a helyet, és felgyorsította a fővárossal való kapcsolatot. Normál forgalomban a főváros központjába vezető út körülbelül 15 percet vesz igénybe.
Ez a hirdetés nem minősül nyilvános ajánlattételnek szerződéskötésre. A tulajdonos fenntartja a jogot, hogy megválassza, kinek és milyen feltételek mellett ruházza át tulajdonjogát.
A szöveg és az összes fénykép a Domy pre ľudí ingatlanügynökség szerzői jogvédelme alatt áll, és előzetes hozzájárulásuk nélküli másolásuk tilos.
További kérdés esetén forduljon hozzám bizalommal e-mailben, vagy hívjon a -es telefonszámon. Köszönöm.
Milyen a lakossági ellátottság a Slovenský Grobban található Dúhová utcában?
A Malý Raj városrészben található Dúhová utca Slovenský Grob lakóövezeti címei közé tartozik, ahol új házak épülnek, és velük együtt a szolgáltatások köre is bővül. A mindennapi kényelmet kiegészíti a 121 m-re található Moja kaviareň, amely ideális egy reggeli eszpresszóhoz és rövid találkozókhoz. Gyakorlati előny a 134 m-re lévő Slovenský Grob, Malý Raj autóbusz-megálló, amelynek köszönhetően autó nélkül is egyszerű a közlekedés a környéken.
A családok számára előny a helyi iskola és óvoda jelenléte, több játszótér, valamint a tó melletti pihenőövezet. Az aktívabbak számára öröm a fitneszpark, illetve a település olyan szolgáltatásai, mint a cukrászda, dentálhigiénia, Packeta átvételi pont, állatorvosi rendelő és fodrászat. Frissítőért vagy rövid munkahelyi megbeszéléshez beugorhat a 121 m-re lévő Moja kaviareňbe, amely szinte „a sarkon van”.
A napi bevásárlást a közeli Chorvátsky Grob – Čierna Voda városrészében intézheti, ahol Tesco és a Monar bevásárlóközpont található gyógyszertárral, drogériával, virágüzlettel, fitneszközponttal és pizzériával. A környék jó kapcsolattal rendelkezik a főútvonalakhoz az OC Klokan melletti bekötőúton keresztül; a kerékpárosok számára pedig új kerékpáros híd áll rendelkezésre Čierna Voda irányába. Az utca lakóövezeti jellegét erősítik a Kárpátokra nyíló kilátások és a 134 m-re lévő Slovenský Grob, Malý Raj megálló közelsége, amely megkönnyíti az ingázást.
A Slovenský Grobban található Dúhová utca környezete a következő lehetőségeket kínálja:
Kávézó: Moja kaviareň – 121 m
Autóbusz-megálló: Slovenský Grob, Malý Raj – 134 m
HOGYAN ÉRTÉKELI A HIRDETÉST?
Részletes információk
| Terület | 86.81 m² |
|---|---|
| Hasznos terület | 86.81 m² |
| Emelet | 3/ |
| Emeletek száma | 3 |
| Szobák száma | 3 |
| Tulajdonviszony | vállalati |
| Ingatlan állapota | szerkezetkész |
| Státusz | aktív |
| Gáz | nem |
| Internet | optika |
| Fürdőszoba | igen |
| Fűtés | igen |
|---|---|
| Pince | igen |
| Építőanyag | tégla |
| Felszereltség | nem berendezett |
| Hőszigetelés | igen |
| Kábeltelevízió | igen |
| Energia tanúsítvány | A |
| Megközelíthetőség | igen |
| Ablakok | műanyag |
| Tájolás | délkelet |
| Új épület | igen |
Kapcsolatfelvételi űrlap
EZ IS ÉRDEKELHETI
Eladó 3 szobás lakás
69.27 m2
Pezinok
236.400,- €
Eladó 3 szobás lakás
74.29 m2
Pezinok
269.000,- €
Eladó 3 szobás lakás
63.78 m2
Pezinok
235.000,- €
Eladó 3 szobás lakás
65.2 m2
Pezinok
187.999,- €
Eladó 3 szobás lakás
63.78 m2
Pezinok
235.000,- €
Eladó 3 szobás lakás
70.74 m2
Pezinok
177.000,- €
Eladó 3 szobás lakás
60.73 m2
Pezinok
225.000,- €
Eladó 3 szobás lakás
72 m2
Pezinok
186.000,- €
Eladó 3 szobás lakás
60.84 m2
Pezinok
225.000,- €
Eladó 3 szobás lakás
74.29 m2
Pezinok
269.000,- €
Eladó 3 szobás lakás
74.01 m2
Pezinok
272.000,- €
Eladó 3 szobás lakás
62 m2
Pezinok
175.000,- €
Eladó 3 szobás lakás
60.78 m2
Pezinok
229.000,- €
Eladó 3 szobás lakás
60.73 m2
Pezinok
225.000,- €
Eladó 3 szobás lakás
71.3 m2
Pezinok
244.900,- €
Eladó 3 szobás lakás
79.11 m2
Pezinok
205.000,- €
Eladó 3 szobás lakás
63 m2
Pezinok
225.000,- €
Eladó 3 szobás lakás
73.5 m2
Pezinok
159.900,- €















