Eladó 2 szobás lakás, 2 szobás lakás, Námestie pri sýpke, Bratislava -
Ország.: Szlovákia
Város.: Bratislava - Jarovce
Lokáció.: Bratislava - Jarovce
Utca.: Námestie pri sýpke
eladó - 2 szobás lakás - Új épület
229.000,- €
beleértve a jutalékok, jelzálog lehetséges
Tegyen árajánlatot 18801x listában megjelenítve / 206x részletesen megjelenítve / 206x részletesen megjelenítve ebben a hónapban
HOGYAN ÉRTÉKELI A HIRDETÉST?
Részletes információk
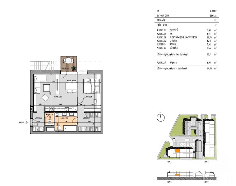
| Terület | 60.48 m² |
|---|---|
| Hasznos terület | 60.48 m² |
| Emelet | 1/felső emelet |
| Emeletek száma | 2 |
| Szobák száma | 2 |
| Tulajdonviszony | saját |
| Ingatlan állapota | teljesen átépített |
| Státusz | aktív |
| Hulladék elszállítás | hulladék válogatás |
| Gáz | nem |
| Internet | optika |
| Fürdőszoba | zuhanyzósarok |
| Fűtés | villany |
| Erkély | 1 |
| Lodzsia | nem |
| Terasz | nem |
| Pince | igen |
|---|---|
| Garázs | 1 autó |
| Felvonó | igen |
| Építőanyag | Kevert |
| Felszereltség | nem berendezett |
| Hőszigetelés | igen |
| Kandalló | nem |
| Légkondicionáló | igen |
| Kábeltelevízió | igen |
| Energia tanúsítvány | A |
| Előkert | nem |
| Megközelíthetőség | igen |
| Ablakok | alumínium |
| Tájolás | kelet |
| Új épület | igen |
