Eladó 2 szobás lakás, 2 szobás lakás, Jaspisová, Bratislava - Jarovce,
Ország.: Szlovákia
Város.: Bratislava - Jarovce
Lokáció.: Bratislava - Jarovce
Utca.: Jaspisová
16208x listában megjelenítve / 151x részletesen megjelenítve / 151x részletesen megjelenítve ebben a hónapban
HOGYAN ÉRTÉKELI A HIRDETÉST?
Részletes információk
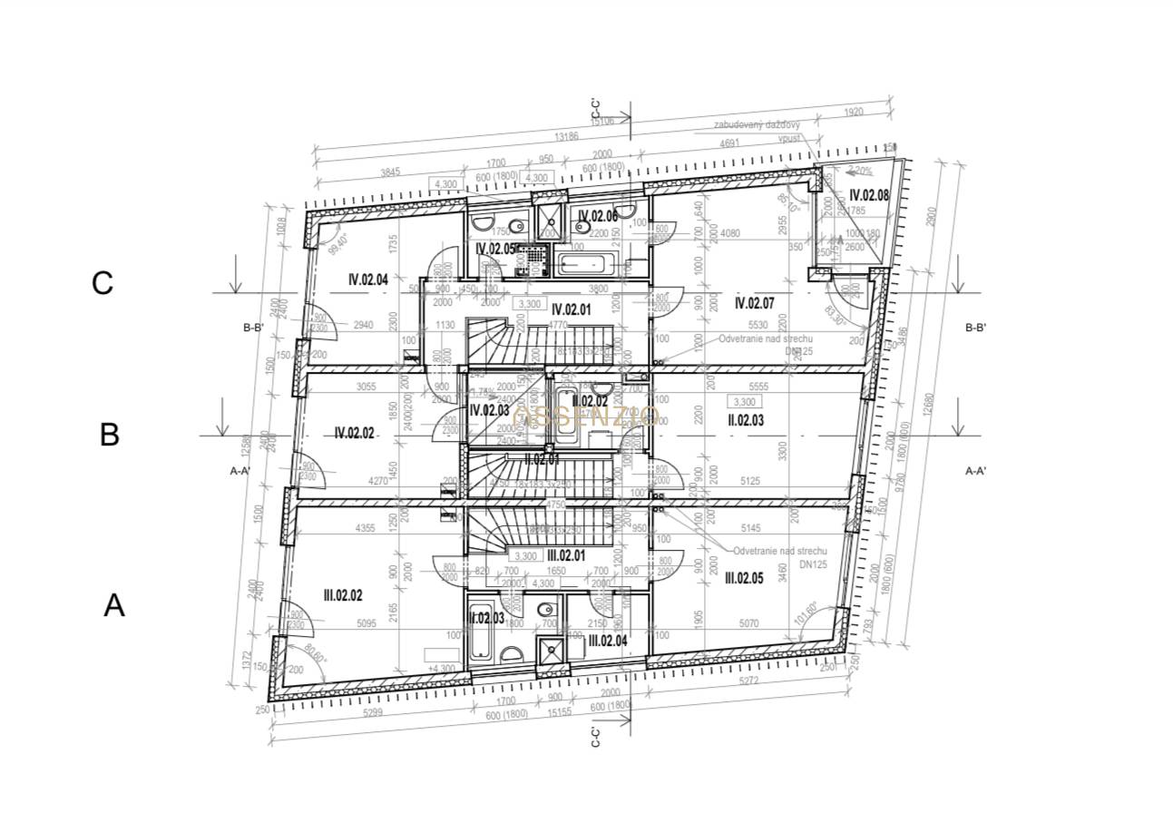
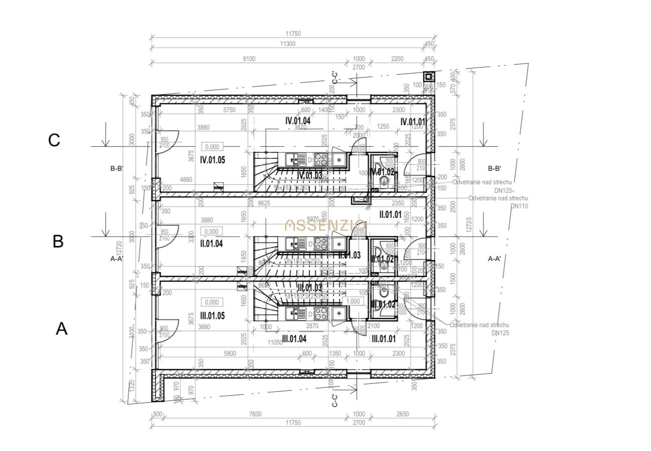
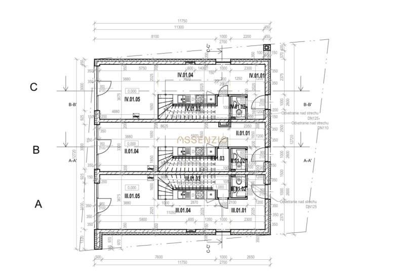
| Terület | 135 m² |
|---|---|
| Hasznos terület | 61 m² |
| Emelet | 2/ |
| Emeletek száma | 2 |
| Szobák száma | 2 |
| Tulajdonviszony | saját |
| Ingatlan állapota | teljesen átépített |
| Státusz | aktív |
| Hulladék elszállítás | hulladék válogatás |
| Gáz | nem |
| Internet | optika |
| Fürdőszoba | fürdőkád |
| Fűtés | saját |
| Terasz | igen |
|---|---|
| Pince | nem |
| Felvonó | nem |
| Parkoló | külső |
| Építőanyag | tégla |
| Felszereltség | részben berendezett |
| Hőszigetelés | igen |
| Kábeltelevízió | igen |
| Energia tanúsítvány | A |
| Megközelíthetőség | nem |
| Ablakok | műanyag |
| Új épület | igen |
