BA/ÓVÁROS - Kiadó egy teljesen berendezett, 2 szobás, 2 erkélyes lakás
15788x listában megjelenítve / 208x részletesen megjelenítve / 208x részletesen megjelenítve ebben a hónapban
Ha olyan lakást keres, ahonnan gyalogosan is könnyen megközelíthető a városközpont, kiváló közlekedési kapcsolatokkal rendelkezik egész Pozsonyhoz, akár villamossal, akár busszal, és teljes közszolgáltatással rendelkezik, akkor van egy nagyszerű ajánlatunk az Ön számára.
Kizárólag hosszú távú bérbeadásra kínálunk egy kiválóan megtervezett, teljesen berendezett, 2 szobás lakást külön konyhával, erkéllyel, franciaerkéllyel és pincével az Óvárosban, a Krížná utcában, a Nagyszombati-mélység közelében. A lakás egy felújított, liftes, téglaépítésű társasház 6 lakóépületéből a 3. emeleten található. A belső tömb délkeleti oldalára néz, ami kellemes fényt biztosít egész nap. Az ablakok redőnyökkel és hálóval vannak felszerelve.
A lakás egy régebbi, teljes felújításon esett át, melynek során kicserélték a villanyszerelő rendszereket, a vízvezeték-szerelést, a műanyag ablakokat, az optikai kábelt, új esztricheket, belső ajtókat, úsztatott padlót, kerámia csempét, WC-t, zuhanyzós és csempés fürdőszobát, bútorokat, valamint egy komplett konyhát beépített gépekkel.
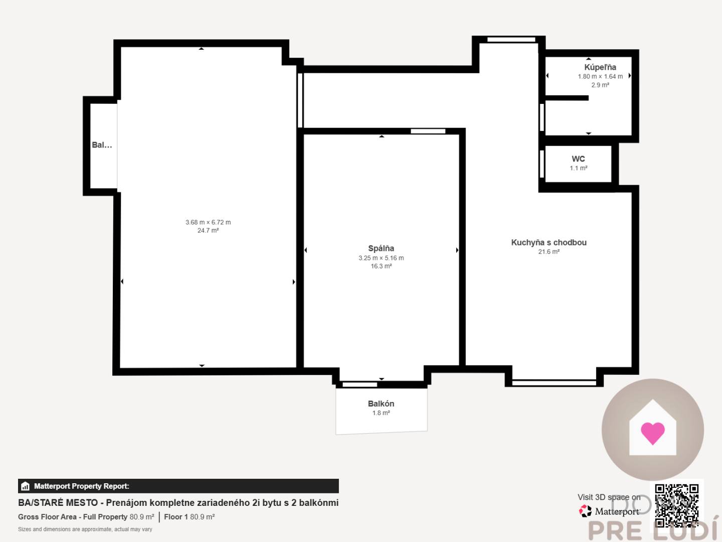
A lakásban található:
- előszoba cipőtartóval, tükörrel és kabáttartóval
- különálló, teljesen felszerelt konyha - egyedi gyártású konyha beépített gépekkel (tűzhely, elektromos sütő, páraelszívó), szabadon álló hűtőszekrénnyel fagyasztóval, mikrohullámú sütővel és mosógéppel, étkezőasztallal 6 székkel, valamint edényekkel és komplett konyhai eszközökkel,
- tágas nappali kanapéval, dohányzóasztallal, szőnyegpadlóval, nappali szekrényekkel, TV-vel, íróasztallal székkel, állólámpával és kijárattal egy franciaerkélyre (0,8 m2),
- tágas hálószoba matracos franciaággyal, 2 db éjjeliszekrénnyel, fotellel, állólámpával és 3 gardróbszekrénnyel. Kijárat egy csendes, zöldövezeti belső tömbre néző erkélyre, ami 4,2 m2-rel növeli a lakás alapterületét,
- fürdőszoba zuhanyzóval, mosdóval, tükrös szekrénnyel és a mosdó alatti szekrénnyel,
- külön WC
- biztonsági ajtó.
A lakáshoz tartozik egy 2 m2-es pince is, amely a társasház alagsorában található.
A lakás bútorozottan kiadó, és azonnal költözhető. Kiváló lakhatási megoldás magánszemélyek és dolgozó párok számára.
A havi bérleti díj 850 euró + 250 euró az energiafogyasztás, beleértve az internetet is. 3 fő esetén az energiaköltség 50 euróval emelkedik.
A bérleti szerződés aláírásakor egy havi bérleti díjnak megfelelő kaució szükséges, amelyet a bérleti szerződés lejárta után visszatérítünk.
Ha érdekli a megtekintés, kérjük, forduljon hozzám bizalommal a következő telefonszámon: telefonszámon.
A helyszín kiváló közösségi infrastruktúrával és jó közlekedési kapcsolatokkal rendelkezik, könnyen megközelíthető a város és Pozsony más részei (Krížna utca, Nagyszombat és Račianske mýto). Közvetlenül a ház alatt található a Terno, egy virágbolt és számos üzlet. A közelben élelmiszerboltok (Lidl, Billa, Terno...), pékség, a Taliana étterem, Domino Pizza, kávézók, az OC Centrál, a Nagyszombati-mítosz tér, a leendő Istropolis, iskola, óvodák, egészségügyi központ stb.
A parkolás az Óváros parkolási szabályzatának megfelelően biztosított.
HOGYAN ÉRTÉKELI A HIRDETÉST?
Részletes információk
| Terület | 72 m² |
|---|---|
| Hasznos terület | 66.2 m² |
| Emelet | 3/felső emelet |
| Emeletek száma | 6 |
| Szobák száma | 2 |
| Tulajdonviszony | vállalati |
| Ingatlan állapota | teljesen átépített |
| Státusz | aktív |
| Hulladék elszállítás | hulladék válogatás |
| Gáz | nem |
| Internet | optika |
| Fürdőszoba | igen |
| Fűtés | közös |
| Erkély | 2 |
| Lodzsia | nem |
| Terasz | nem |
|---|---|
| Pince | igen |
| Garázs | nem |
| Parkoló | nyilvános |
| Építőanyag | tégla |
| Felszereltség | berendezett |
| Hőszigetelés | igen |
| Kandalló | nem |
| Légkondicionáló | nem |
| Kábeltelevízió | igen |
| Energia tanúsítvány | igen |
| Előkert | nem |
| Megközelíthetőség | nem |
| Ablakok | műanyag |
| Tájolás | délkelet |
Kapcsolatfelvételi űrlap
Az ár alakulása
EZ IS ÉRDEKELHETI
Kiadó 2 szobás lakás
65 m2
Bratislava - Staré Mesto
600,- €/hó
Kiadó 2 szobás lakás
59 m2
Bratislava - Staré Mesto
1.500,- €/hó
Kiadó 2 szobás lakás
48 m2
Bratislava - Staré Mesto
750,- €
Kiadó 2 szobás lakás
50 m2
Bratislava - Staré Mesto
1.200,- €/hó
Kiadó 2 szobás lakás
51.4 m2
Bratislava - Staré Mesto
840,- €/hó
Kiadó 2 szobás lakás
63 m2
Bratislava - Staré Mesto
1.300,- €/hó
Kiadó 2 szobás lakás
56.72 m2
Bratislava - Staré Mesto
790,- €/hó
Kiadó 2 szobás lakás
54.8 m2
Bratislava - Staré Mesto
900,- €/hó
Kiadó 2 szobás lakás
50 m2
Bratislava - Staré Mesto
1.050,- €/hó
Kiadó 2 szobás lakás
51 m2
Bratislava - Staré Mesto
1.150,- €/hó
Kiadó 2 szobás lakás
53 m2
Bratislava - Staré Mesto
890,- €
Kiadó 2 szobás lakás
58 m2
Bratislava - Staré Mesto
950,- €
Kiadó 2 szobás lakás
50 m2
Bratislava - Staré Mesto
990,- €/hó
Kiadó 2 szobás lakás
62 m2
Bratislava - Staré Mesto
1.500,- €/hó
Kiadó 2 szobás lakás
48 m2
Bratislava - Staré Mesto
700,- €
Kiadó 2 szobás lakás
57 m2
Bratislava - Staré Mesto
780,- €
Kiadó 2 szobás lakás
65 m2
Bratislava - Staré Mesto
630,- €/hó
Kiadó 2 szobás lakás
45 m2
Bratislava - Staré Mesto
1.000,- €/hó

























